Trilocale in vendita

Stradella, Via Nazionale
€ 173.000
3 locali 3 locali
104 Mq 104 Mq
2 bagni 2 bagni

Trilocale in vendita

Stradella, Via Nazionale

Descrizione annuncio

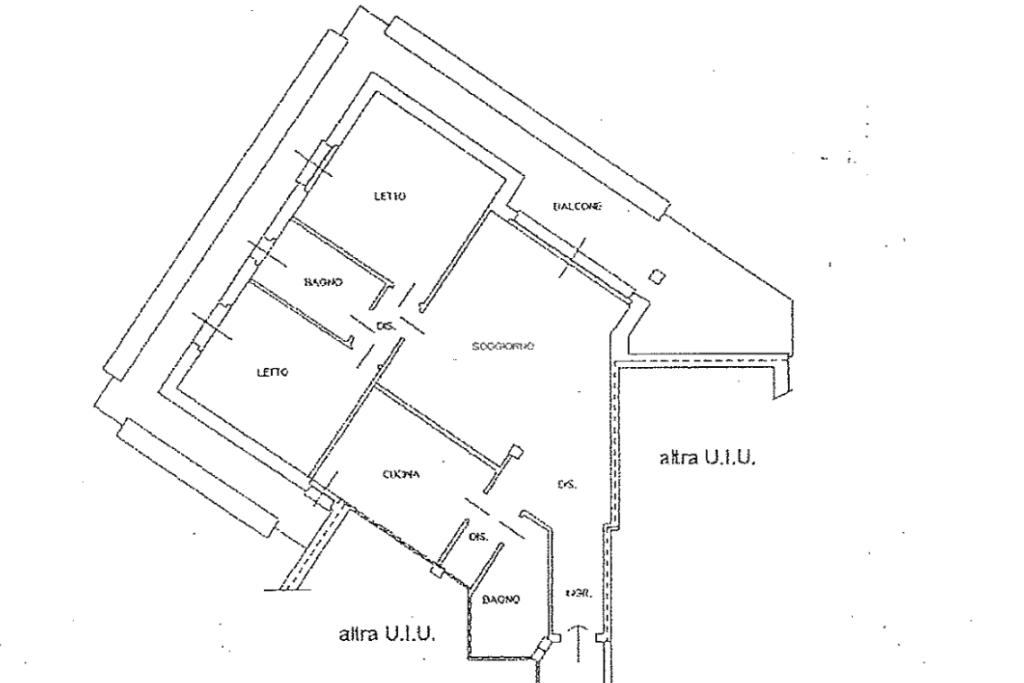
STRADELLA-via nazionale-Posto al primo piano di una moderna palazzina servita da ascensore, l'appartamento è caratterizzato dagli ambienti ampi e luminosi. Tramite l'ingresso si accede alla zona giorno dove troviamo il luminoso soggiorno con affaccio sul terrazzino, la cucina abitabile, il bagno ed un comodo ripostiglio. Un disimpegno conduce alla zona notte composta da due spaziose camere da letto ed il secondo bagno con boccia, oltre all'ampio balcone che circonda l'appartamento su 3 lati. Di pertinenza vi sono il box e la cantina. L'appartamento si presenta in buone condizioni generali, è dotato di impianti autonomi e climatizzatore.

Potete trovare maggiori informazioni presso il nostro ufficio di Stradella (PV) - Viale Allea n. 17 dove i nostri consulenti saranno a vostra disposizione.

TROVATE Tecnorete Stradella ANCHE SU FACEBOOK E SU INSTAGRAM con tante informazioni e curiosità.

Mostra tutto

Nelle vicinanze

Trasporto pubblico Trasporto pubblico
Stradella
Stradella
520 m
Broni-Piazza Italia
Broni-Piazza Italia
2,9 Km
Ricariche auto elettriche Ricariche auto elettriche
U2 Supermercato Stradella | ENELX
900 m
Broni Meriggi | EnelX
2,9 Km
Scuole Scuole
Scuola Primaria Edmondo De Amicis
450 m
Istituto di Istruzione Superiore Luigi Giuseppe Faravelli
590 m
Scuole
1,6 Km
Farmacia Farmacia
Farmacia Centrale
430 m
Ospedali Ospedali
Ospedale unificato Broni-stradella
720 m
Ospedale Arnaboldi
2,7 Km
Croce Rossa Italiana - Stradella
2,7 Km
Supermercati Supermercati
Basko
450 m
Gulliver
840 m
Lidl
870 m
UNES supermercato
920 m
Esselunga di Broni
1,3 Km
Bar Bar
Enoteca del Monaco
320 m
Caffè del Teatro
440 m
Golden Bar
600 m
Concordia Cafè
690 m
Bar Garibaldi
740 m
Ristoranti Ristoranti
Il Gallo
530 m
Pizzeria al vecchio Sanremo
820 m
Pizzeria La ruota
830 m
Pizzeria da Lorenzo
870 m
Liros
1,4 Km
Mostra tutto

Caratteristiche

Rif.:
61173339
Piano:
1 di 3 con ascensore (Piano basso)
Box:
1
Balconi:
1
Terrazzi:
1
Camere da letto:
2
Mostra tutto
Prezzo Prezzo
€ 173.000
Rata mutuo Rata mutuo
€ 820 / mese
Spese annue Spese annue
€ 1
Proponi il tuo prezzoProponi il tuo prezzo
Immobile valutato con T·Valuta

Classe Energetica

C
C
C
C
C
C
C
C
C
EP globale non rinnovabile:
104.43 kW h/m² anno
EP globale rinnovabile:
0.54 kW h/m² anno
EP invernale del fabbricato:
EP estiva del fabbricato:
Anno di costruzione:
2009
Riscaldamento:
Autonomo
Tipo impianto:
A radiatori
Tipo alimentazione:
Metano

Ti interessa visionare l'immobile?

Fissa un appuntamento  Fissa un appuntamento

Richiedi informazioni

Clicca su Leggi per aprire l'informativa
* Questi campi sono obbligatori

Calcola il tuo mutuo

Semplice e senza impegno
Anticipo

( % )
Mutuo

( % )

pochi semplici passi

inserisci i tuoi dati
Questionario completato
Grazie per aver richiesto un appuntamento senza impegno con un nostro Consulente del Credito e Assicurativo.

Hai inserito correttamente tutti i dati necessari e a breve riceverai una e-mail con un link da convalidare per inviare i tuoi dati.
Affiliato
Studio Giardini D.I.
Viale Allea, 17 27049 Stradella (PV)

Il nostro staff


  • Mauro Fabbris
    Affiliato

  • Lidia Tosi
    Coordinatrice
Viale Allea, 17 27049 Stradella (PV)
Zona: Oltrepò Pavese - Stradella - Portalbera - Arena Po
Mostra su mappa
Orari: dal lunedì al venerdì: 09.00-12.30 / 15.00-19.00; sabato: su appuntamento; domenica: chiuso.
Affiliato
Studio Giardini D.I.
Viale Allea, 17 27049 Stradella (PV)

2026 Tecnocasa Franchising S.p.A. - P. IVA 08365160152 - Via Monte Bianco 60/A 20089 Rozzano (MI). Ogni agenzia ha un proprio titolare ed è autonoma. Privacy policy | Policy utilizzo | Cookie policy